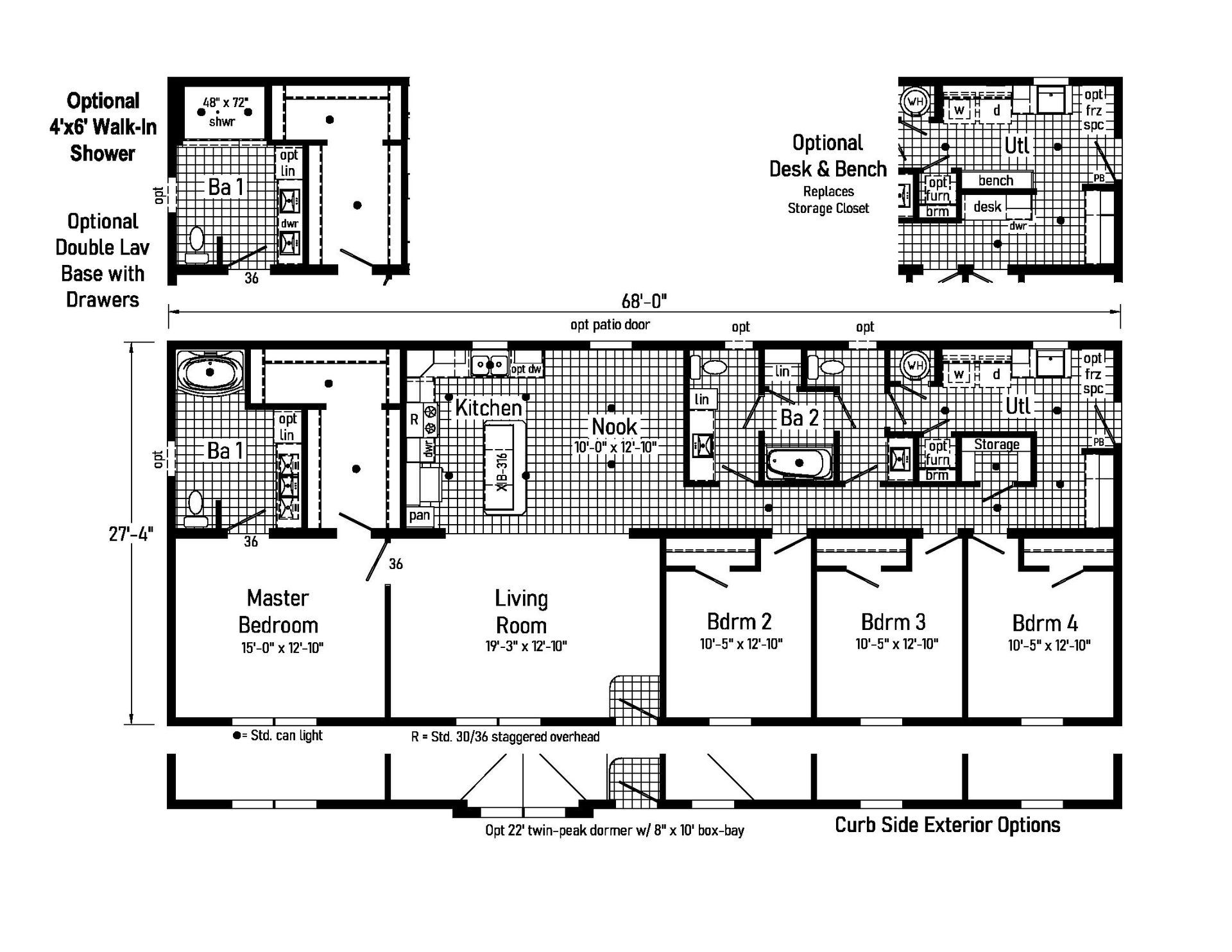
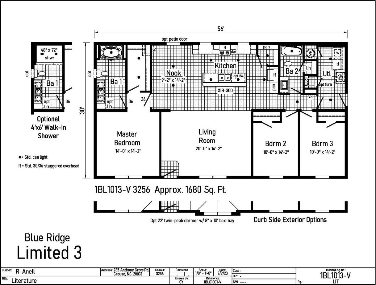
Modular Homes in Gloucester, VA
Signature Homes, LLC takes pride in the fact that we sell the highest quality
of modular and manufactured homes in the business. We also offer many different levels of service so tell us exactly what you need, and we will price it accordingly. Whether you just want a house, or a complete, turnkey package, we will take care of your every need.
Manufactured Homes are built to the federal HUD (Housing & Urban Development) code and carry a title like a vehicle. These houses are essentially all built the same though some manufacturers do go above and beyond the hud code. Manufactured homes have a steel frame that supports them along with block piers. These house do not get supported by a concrete foundation. These type of homes can sometimes finance and insure differently than modulars and stick built homes but do carry a cheaper price point than both.
What is the difference between Modulars, Manufactured Homes and Stick Built Houses?
Modular Homes are essentially just like stick built houses since both are built to an individual state code. They finance the same, appraise the same, insure the same and resell the same. The main differences are that modulars are built in a climate controlled factory in sections and then shipped to the building site for assembly. Modulars also tend to be cheaper per square foot to build and quicker to complete in comparison to stick built homes.Manufactured Homes are built to the federal HUD (Housing & Urban Development) code and carry a title like a vehicle. These houses are essentially all built the same though some manufacturers do go above and beyond the hud code. Manufactured homes have a steel frame that supports them along with block piers. These house do not get supported by a concrete foundation. These type of homes can sometimes finance and insure differently than modulars and stick built homes but do carry a cheaper price point than both.
Interested to see if you qualify?
Click here to request a credit application.
Looking for land? We can help!
Click here to request a credit application.
Looking for land? We can help!








































































